- AltoQi Suporte
- AltoQi Builder
- Desenhos e Arquitetura
-
QiOnboarding
-
Instalação e Setup das Soluções AltoQi
-
Atendimento Setup e Suporte AltoQi
-
AltoQi Education
-
Novidades de Release
-
Arquitetura e Interoperabilidade BIM
-
AltoQi Eberick
- Interface
- Criação, abertura e salvamento de projetos
- Pavimentos e níveis intermediários
- Desenhos e Arquitetura
- Desenhos e Arquitetura | Interoperabilidade BIM
- Pilares | Lançamento
- Pilares | Erros e Avisos
- Pilares | Dimensionamento e Detalhamento
- Vigas | Lançamento
- Vigas | Erros e Avisos
- Vigas | Dimensionamento e Detalhamento
- Lajes | Lançamento
- Lajes | Erros e Avisos
- Lajes | Dimensionamento
- Lajes | Detalhamento
- Fundações | Lançamento
- Fundações | Erros e Avisos
- Fundações | Dimensionamento e Detalhamento
- Cargas
- Escadas
- Escadas | Exemplos de Lançamento
- Reservatórios
- Reservatórios | Exemplos de lançamento
- Paredes de contenção
- Muros de Arrimo
- Elementos genéricos e perfis metálicos
- Estruturas de Alvenaria Estrutural
- Estruturas de Protensão
- Estruturas Pré-Moldadas
- Estruturas Pré-Moldadas | Erros e Avisos
- Processamento
- Análise da estrutura
- Estabilidade global
- Deslocamentos e durabilidade
- Planta de fôrma e locação
- Pranchas e detalhamentos
- Configurações
- Outros
-
AltoQi Builder
- Interface
- Criação, abertura e salvamento de projetos
- Desenhos e Arquitetura
- Desenhos e Arquitetura | Interoperabilidade BIM
- Desenhos e Arquitetura | Recursos de CAD
- Projetos multidisciplinares e referências externas
- Níveis de desenho
- Configurações
- Cadastro
- Simbologias
- Avisos e Indicações
- Geral
- Disciplina Alvenaria
- Disciplina Cabeamento
- Disciplina Climatização
- Disciplina Gás
- Disciplina Hidráulico | Reservatórios (Caixa d'água)
- Disciplina Hidráulico | Alimentação, hidrômetros (coletivos e individuais) e bombas de recalque
- Disciplina Hidráulico | Colunas, prumadas e barriletes de distribuição
- Disciplina Hidráulico | Condutos (tubulações) e lançamentos
- Disciplina Hidráulico | Ramais e Ambientes Molhados (banheiros, cozinhas, áreas de serviço)
- Disciplina Hidráulico | Peças e materiais (PEX, registros, conexões)
- Disciplina Hidráulico | Aquecedores, Reservatórios Térmicos e Placas Solares
- Disciplina Hidráulico | Piscinas
- Disciplina Hidráulico | Verificação de pressões, vazões e perdas de carga
- Disciplina Hidráulico | Soluções para pressão (pressurizadores e VRP)
- Disciplina Sanitário | Colunas Sanitárias, Ventilação e Tubos de Queda
- Disciplina Sanitário | Ramais e Ambientes Sanitários (banheiros, cozinhas, áreas de serviço)
- Disciplina Sanitário | Peças e componentes (ralos, sifões, conexões)
- Disciplina Sanitário | Caixas de passagem, gordura e sifonadas
- Disciplina Sanitário | Rede Pluvial, Calhas e Coletores
- Disciplina Sanitário | Unidades de Tratamento
- Disciplina Sanitário | Estações elevatórias e bombas submersíveis
- Disciplina Sanitário | Verificações e dimensionamento (diâmetros, declividades, inclinações)
- Disciplina Incêndio
- Disciplina SPDA
- Condutos
- Colunas e Prumadas
- Pavimentos
- Peças
- Visão 3D
- Cortes, detalhes e esquemas
- Relatórios
- Impressão/Exportação
- Pranchas
- Controle de revisões
- Outros
-
AltoQi Visus
-
Editor de Armaduras
-
Elétrico
- Cadastro
- Lâmpadas e comandos | Lançamento
- Tomadas | Lançamento
- Quadros | Lançamento
- Pontos em geral | Lançamento
- Condutos | Lançamento
- Quadros | Operações
- Circuitos | Operações
- Condutos | Operações
- Fiação | Operações
- Fiação | Configurações
- Dimensionamento
- Erros de dimensionamento
- Erros e Avisos
- Quadros e Diagramas | Detalhamentos
- Legendas e Relatórios | Detalhamentos
- Módulo Fotovoltaico
- Outros
-
AltoQi Visus Cost Management
- Versões AltoQi Visus Cost Management
- Licença do AltoQi Visus Cost Management
- Exportação dos modelos IFC
- Importação e manipulação dos Modelos 3D
- Propriedades BIM dos modelos 3D
- Propriedades BIM por fórmulas
- Estrutura analítica de projeto - EAP
- Filtro de extração de dados
- Lista de quantitativos
- Exemplos aplicados
- Orçamento
- Banco de dados
- Relatórios
- Módulo Visus Infraestrutura
- Modo de trabalho 2D
- Configurações
- Integrações
- Conteúdo para orçamento de obras
-
AltoQi Visus Collab
-
AltoQi Visus Workflow
Como verificar a sobreposição das arquiteturas de pavimentos diferentes no AltoQi Builder?
Após criarmos uma edificação, o primeiro passo ao realizar um projeto no AltoQi Builder é a definição da arquitetura. Embora seja possível desenhar a própria planta arquitetônica no ambiente do programa, muitas vezes utilizamos plantas prontas, em DWG, DXF ou CAD, que precisam ser importadas para o projeto.
Após a importação das arquiteturas é necessário realizar uma preparação destas, convertendo a escala, para garantir que as distâncias reais do projeto sejam utilizadas, e posicionando a origem, para garantir o alinhamento entre os pavimentos.
Caso um destes itens não seja feito adequadamente, é possível que o projeto gere dimensionamentos incorretos ou que os pavimentos fiquem desalinhados, impedindo o lançamento correto do projeto. Para auxiliá-lo neste processo, montamos esta série de quatro artigos para mostrar como estes procedimentos devem ser realizados no AltoQi Builder.
- Como importar uma arquitetura no AltoQi Builder?
- Como converter a escala da arquitetura no AltoQi Builder?
- Como posicionar a origem da arquitetura no AltoQi Builder?
- Como verificar a sobreposição das arquiteturas de pavimentos diferentes no AltoQi Builder? (este artigo)
Verificando a sobreposição das arquiteturas

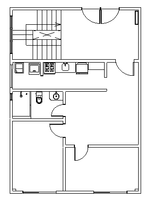
- Na janela Edificação efetue um duplo clique sobre um projeto específico (hidráulico, sanitário, incêndio, gás, fiação, SPDA ou alvenaria) para abri-lo;

- Será exibida a arquitetura deste pavimento;

- Na janela Edificação clique com o botão direito do mouse sobre o projeto aberto e selecione a opção Referências externas...;

- No diálogo Referências externas habilite todas as arquiteturas;
- Clique em OK;

Observação: Outra vantagem de utilizar Referências externas é que ela elimina a necessidade de inserir uma arquitetura por pavimento. Em pavimentos tipo, por exemplo, basta inserir a arquitetura em um pavimento Tipo e habilitar a referência externa para os demais pavimentos.
O programa apresentará no croqui aberto a arquitetura de todos os pavimentos selecionados, desta forma será possível visualizar se todas estão corretamente alinhadas.

Observação: Se as arquiteturas não estiverem sobrepostas será necessário verificar qual procedimento não foi realizado corretamente (conversão de escala e/ou posicionamento da origem), em qual pavimento e refazê-lo.
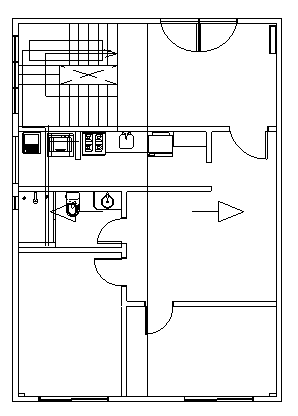
Após realizar a verificação, pode-se retirar a referência externa das demais arquiteturas, para isso:
- Retorne a janela Edificação, clique com o botão direito do mouse sobre o projeto aberto e selecione a opção Referências externas...;
- No diálogo Referências externas desabilite as arquiteturas dos demais pavimentos;
- Clique em OK.

Realizando os procedimentos descritos neste artigo é possível verificar se as arquiteturas importadas estão sobrepostas umas as outras.
Com isso, finalizamos a série de artigos sobre a importação de arquiteturas no programa. Uma vez que todas as arquiteturas foram inseridas e posicionadas, o usuário pode iniciar o lançamento do projeto.
Colaborador: Eng.ª Caroline Corrêa de Souza